
Популярный проект
Райт-100
О проекте
Стильный одноэтажный дом в духе Фрэнка Ллойда Райта. Горизонтальные линии, панорамное остекление и открытая планировка создают ощущение простора.
Дополнительно
- Панорамное остекление
- Открытая кухня-гостиная
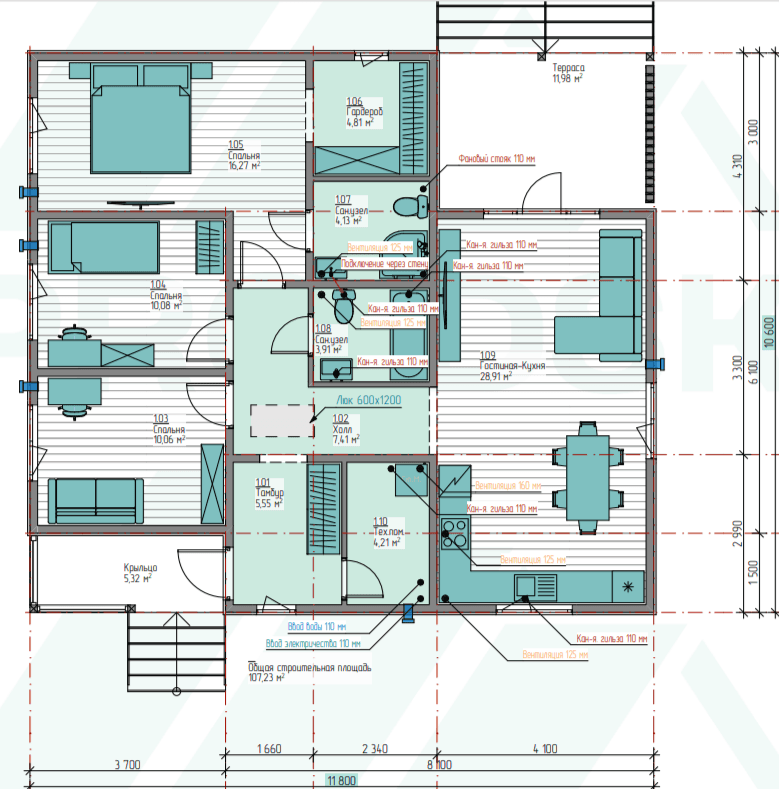
- Две спальни
- Крытая терраса
Фотографии проекта

Планировки
План этажа

Изменить планировку
с архитектором
Любой проект PRO-DSK можно адаптировать под ваш стиль жизни — изменить планировку, фасады, добавить уникальные детали.

Стоимость
Стоимость указана для проекта «Райт-100».
Для уточнения стоимости свяжитесь с нами или оставьте заявку на обратный звонок — мы свяжемся с вами в ближайшее время.
Строим дома из деревянного каркаса — внутренняя несущая конструкция, которая состоит из сочетания линейных элементов. При сборке каркаса используем доски толщиной 50 мм — не менее, что обеспечивает прочность и долговечность строению. Каркасный дом недорогой в плане строительства, возводится быстро при любой температуре. Эффективен в любых климатических и геологических условиях. Бережёт тепло зимой и удерживает прохладу летом. При возведении дома применяется хорошо просушенная древесина, что даёт возможность проводить внутреннюю отделку сразу же после завершения строительства. Каркасная технология позволяет реализовывать любые архитектурные и дизайнерские решения. Внешний вид таких коттеджей и их внутренняя планировка поражают своим разнообразием. Отделочные материалы и элементы для кровли и фасада также можно выбрать любые. Минимальные сроки строительства — от нескольких недель.
Цена: от 45 000 ₽/м²·Срок: от 2 месяцев
Ипотека
Ипотека на строительство от 0%
Аккредитованы в крупнейших банках России




Ипотечный калькулятор
ДОМ.РФ
от 6.0% · до 30 лет
от 40 120 ₽/мес
Сбербанк
от 6.4% · до 30 лет
от 41 423 ₽/мес
ВТБ
от 6.6% · до 30 лет
от 42 082 ₽/мес
* Расчёт является предварительным и не является публичной офертой.
Таймлайн проекта (4,5 месяца)
Сроки в таймлайне указаны средние.



