
Популярный проект
Б-199
О проекте
Двухэтажный дом с пятью комнатами для большой семьи. Просторные помещения, удобная планировка и современный дизайн фасадов.
Дополнительно
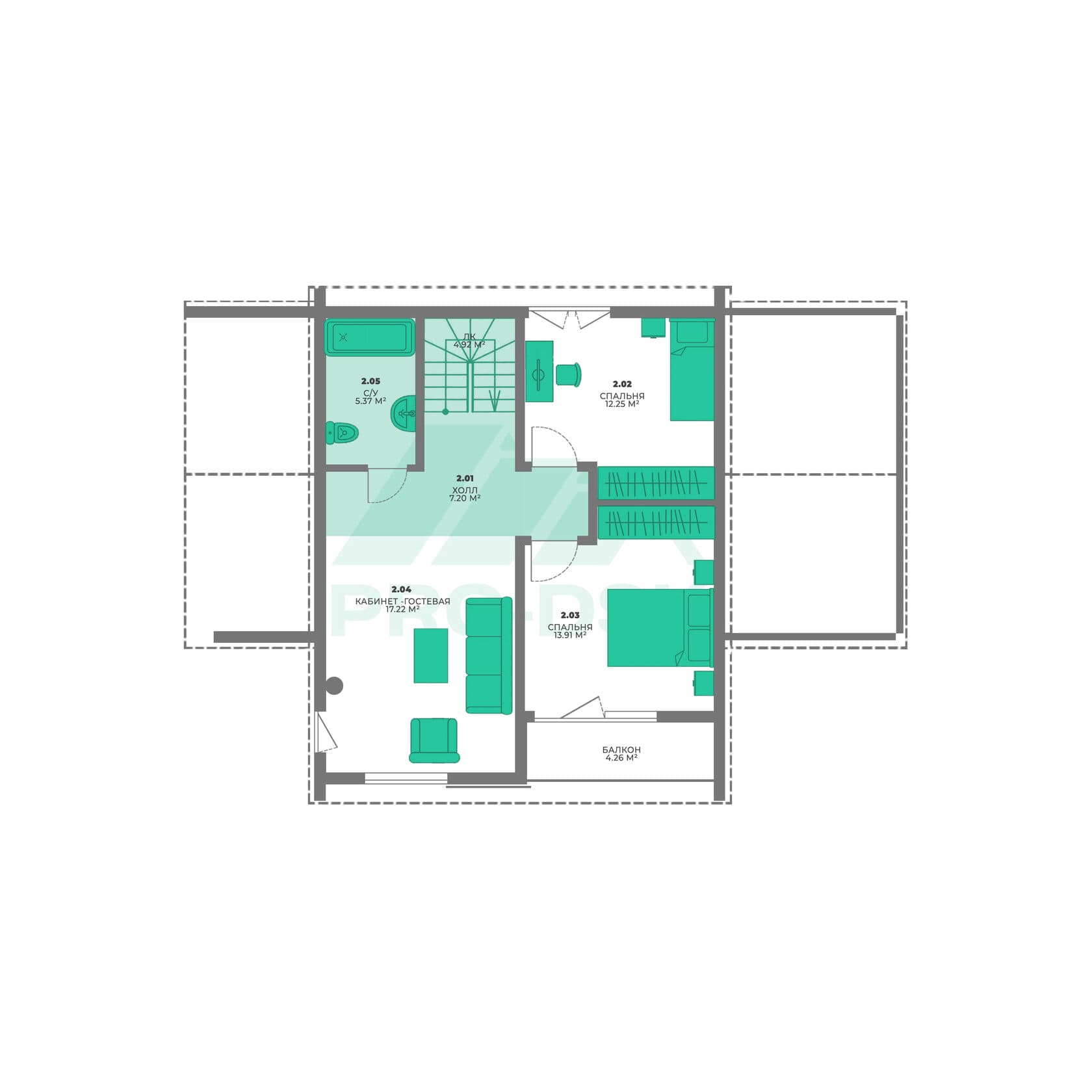
- Большая кухня-гостиная
- Мастер-блок с гардеробной и санузлом
- Три дополнительные спальни
- Кабинет
- Два балкона
Фотографии проекта

Планировки
План 1-го этажа

План 2-го этажа

Изменить планировку
с архитектором
Любой проект PRO-DSK можно адаптировать под ваш стиль жизни — изменить планировку, фасады, добавить уникальные детали.

Стоимость
Стоимость указана для проекта «Б-199».
Для уточнения стоимости свяжитесь с нами или оставьте заявку на обратный звонок — мы свяжемся с вами в ближайшее время.
Строим дома из деревянного каркаса — внутренняя несущая конструкция, которая состоит из сочетания линейных элементов. При сборке каркаса используем доски толщиной 50 мм — не менее, что обеспечивает прочность и долговечность строению. Каркасный дом недорогой в плане строительства, возводится быстро при любой температуре. Эффективен в любых климатических и геологических условиях. Бережёт тепло зимой и удерживает прохладу летом. При возведении дома применяется хорошо просушенная древесина, что даёт возможность проводить внутреннюю отделку сразу же после завершения строительства. Каркасная технология позволяет реализовывать любые архитектурные и дизайнерские решения. Внешний вид таких коттеджей и их внутренняя планировка поражают своим разнообразием. Отделочные материалы и элементы для кровли и фасада также можно выбрать любые. Минимальные сроки строительства — от нескольких недель.
Цена: от 45 000 ₽/м²·Срок: от 2 месяцев
Ипотека
Ипотека на строительство от 0%
Аккредитованы в крупнейших банках России




Ипотечный калькулятор
ДОМ.РФ
от 6.0% · до 30 лет
от 40 120 ₽/мес
Сбербанк
от 6.4% · до 30 лет
от 41 423 ₽/мес
ВТБ
от 6.6% · до 30 лет
от 42 082 ₽/мес
* Расчёт является предварительным и не является публичной офертой.
Таймлайн проекта (7,5 месяцев)
Сроки в таймлайне указаны средние.



