Райт-100

Цены и комплектации

Комфорт плюс каркас

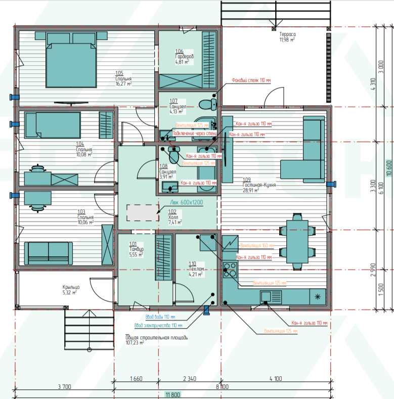
Дом «Райт» 100 кв. м Планировка: Кухня-гостиная 3 спальни 2 санузла Тамбур Крыльцо Техническое помещение Терраса Гардеробная Особенности: Общая площадь: 100 кв. м Функциональное зонирование Встроенные системы хранения Отдельные санитарные зоны Зона отдыха на террасе Гарантия: 5 лет Современный проект с продуманной планировкой и рациональным использованием пространства. Все помещения спроектированы с учётом максимального комфорта проживания.

Домокомплект

Обвязка

  • Брус обрезной 150х200 мм

Перекрытия цоколя, чердака

  • Балки усиленные: доска обрезная 50х200

Перекрытия межэтажные

  • Балки усиленные: строганная доска камерной сушки 45х195 мм

Каркас несущих стен

  • Стойки, диагональные усиления стен: строганная доска камерной сушки 45х145 мм
  • Обрешётка под перекрёстное утепление стен снаружи: строганный брусок камерной сушки 45х45 мм

Каркас внутренних стен

  • Стойки, диагональные усиления стен: строганная доска камерной сушки 45х95 мм/45х145 мм

Стропильная система

  • Стропила: доска обрезная 50х200 мм
  • Контробрешётка: строганный брусок камерной сушки 40х40 мм
  • Обрешётка: доска обрезная 25х100 мм
  • Антисептирование силовых деревянных конструкций биозащитным составом Neomid
  • Пароизоляция: Ютафол Н-96 Сильвер
  • Гидроизоляция: Ютайвек 115
  • Теплоизоляция: Rockwool/UMATEX Termo/Технониколь
  • Наружные стены: 200 мм
  • Внутренние несущие стены: 150 мм
  • Внутренние перегородки: 100 мм
  • Цокольное перекрытие: 200 мм
  • Межэтажное перекрытие: 150 мм
  • Чердачное перекрытие (чердак холодный): 200 мм

Отделка

Наружные стены

  • Имитация бруса. Покраска не включена
  • Вертикальные направляющие для вент. фасада: строганный брусок камерной сушки 40х40 мм
Внутренние стены и перегородки:
  • Гипсокартонный лист (ГКЛ) 9,5 мм в 2 слоя с перекрытием швов (без шпаклевки швов) по обрешетке из сухой доски

Потолки

  • Подготовка под натяжной потолок обрешетка из сухой строганной доски
  • Цементно-стружечная плита (ЦСП) толщиной 20 мм по обрешетке из сухой доски все помещения

Окна ПВХ

  • Rehau Grazio 70 мм. Двухкамерный стеклопакет

Дверь входная металлическая

  • Дверь с терморазрывом. Производство Россия. В кол-ве 1 шт

Межэтажная лестница

  • Лестница техническая с балясинами, перилами, косоуром и закрытыми ступенями.
  • Пространство под лестницей закрывается фанерой. Без покраски

Кровля

Кровельное покрытие

  • Металлочерепица GRAND LINE CLASSIC. Покрытие Satin. Толщина стали 0,5 мм

Подшивка свесов кровли

  • Пластиковые софиты. Свесы крыши – 550 мм от края наружной стойки

Водосточная система

  • Пластиковая водосточная система. Комплект

Снегозадержание

  • Снегозадержатель трубчатый

Цена: 6 300 000 ₽

Премиум каркас

Фундамент

  • Сваи забивные железобетонные 150х150х3000, усиленные армированием конструкции; оголовок 200х200 мм
  • Двойная горизонтальная гидроизоляция: гидростеклоизол

Домокомплект

Обвязка

  • Брус сухой строганный 145х195 мм
  • Сетка оцинкованная металлическая для защиты от грызунов

Перекрытия цоколя, чердака

  • Балки усиленные: строганная доска камерной сушки 45х195 мм

Перекрытия межэтажные

  • Балки усиленные: строганная доска камерной сушки 45х195 мм

Каркас несущих стен

  • Стойки, диагональные усиления стен: строганная доска камерной сушки 45х145 мм
  • Обрешётка под перекрёстное утепление стен снаружи: строганный брусок камерной сушки 45х45 мм

Каркас внутренних стен

  • Стойки, диагональные усиления стен: строганная доска камерной сушки 45х95 мм/45х145 мм

Стропильная система

  • Стропила: строганная доска камерной сушки 45х195 мм
  • Контробрешётка: строганный брусок камерной сушки 40х40 мм
  • Обрешётка: доска обрезная 25х100 мм
  • Антисептирование силовых деревянных конструкций биозащитным составом Neomid
  • Пароизоляция: Ютафол Н-96 Сильвер
  • Гидроизоляция: Ютайвек 115
  • Теплоизоляция: Rockwool/UMATEX Termo/Технониколь
  • Наружные стены: 200 мм
  • Внутренние несущие стены: 150 мм
  • Внутренние перегородки: 100 мм
  • Цокольное перекрытие: 200 мм
  • Межэтажное перекрытие: 150 мм
  • Чердачное перекрытие (чердак холодный): 200 мм

Отделка

Наружные стены

  • Имитация бруса. Покраска не включена
  • Вертикальные направляющие для вент. фасада: строганный брусок камерной сушки 40х40 мм
  • Внутренние стены и перегородки: Гипсокартонный лист (ГКЛ) 9,5 мм в 2 слоя с перекрытием швов (без шпаклевки швов) по обрешетке из сухой доски

Потолки

  • Подготовка под натяжной потолок обрешетка из сухой строганной доски
  • Цементно-стружечная плита (ЦСП) толщиной 20 мм по обрешетке из сухой доски все помещения

Окна ПВХ

  • Rehau Grazio 70 мм. Двухкамерный стеклопакет

Дверь входная металлическая

  • Дверь с терморазрывом. Производство Россия. В кол-ве 1 шт

Межэтажная лестница

  • Лестница техническая с балясинами, перилами, косоуром и закрытыми ступенями.
  • Пространство под лестницей закрывается фанерой. Без покраски

Кровля

Кровельное покрытие

  • Металлочерепица GRAND LINE CLASSIC. Покрыте Satin. Толщина стали 0,5 мм

Подшивка свесов кровли

  • Пластиковые софиты. Свесы крыши – 550 мм от края наружной стойки

Водосточная система

  • Пластиковая водосточная система. Комплект

Снегозадержание

  • Снегозадержатель трубчатый

Цена: 4 686 000 ₽

Газоблок

Фундамент

  • Тип фундамента дома: монолитная плита дома 200мм(h) с рёбрами жесткости вниз сечением 600мм(h)х400мм; бетон заводского изготовления класс В22,5
  • Тип фундамента террасы/крыльца: ленточный железобетонный; сечение ленты 800мм(h)х300мм; бетон заводского изготовления класс В22,5
  • Двойная горизонтальная гидроизоляция: гидростеклоизол 2 слоя под стенами из блока

Домокомплект

Обвязка

  • Обвязка террасы/крыльца
  • Брус обрезной 150х150/150х200 мм

Перекрытия цоколя

  • Монолитная ж/б плита без отделки

Перекрытие цоколя террасы/крыльца

  • Балки усиленные: доска обрезная 50х150/50х200 мм

Перекрытия чердака

  • Балки усиленные: доска обрезная 50х200 мм

Перекрытия межэтажные

  • Монолитная плита перекрытия 200мм(h); бетон заводского изготовления класс В22,5
  • Утепление плиты перекрытия по внешнему периметру ЭППС 50 мм, укладка доборного блока

Наружные стены

  • Газобетонный блок (ДхШхВ) 600/625х400х250 мм, плотность D400

Внутренние несущие стены

  • Газобетонный блок (ДхШхВ) 600/625х300х250 мм, плотность D500/600

Внутренние перегородки

  • Газобетонный блок (ДхШхВ) 600/625х100/150/200х250 мм, плотность D500/600

Стропильная система

  • Стропила: доска обрезная 50х200
  • Контробрешётка: строганный брусок камерной сушки 40х40 мм
  • Обрешётка: доска обрезная 25х100 мм
  • Антисептирование силовых деревянных конструкций биозащитным составом Neomid
  • Пароизоляция: Ютафол Н-96 Сильвер
  • Гидроизоляция: Ютайвек 115
  • Теплоизоляция: Rockwool/UMATEX Termo/Технониколь
  • Чердачное перекрытие (чердак холодный): 200 мм

Отделка

Потолки утепленного чердачного перекрытия

  • Разреженная обрешётка доска обрезная 25х100 мм

Окна ПВХ

  • Rehau Grazio 70 мм. Двухкамерный стеклопакет

Дверь входная металлическая

  • Дверь с терморазрывом. Производство Россия. В кол-ве 1 шт

Межэтажная лестница

  • Технологическая двухмаршевая лестница без ограждений из обрезной доски

Кровля

Кровельное покрытие:

  • Металлочерепица GRAND LINE CLASSIC. Покрытие Satin. Толщина стали 0,5 мм

Цена: 5 211 000 ₽

Технологии

Каркас

Строим дома из деревянного каркаса. Это внутренняя несущая конструкция, которая состоит из сочетания линейных элементов. При сборке каркаса используем доски толщиной 50 мм – не менее, что обеспечивает прочность и долговечность строению.

Каркасный дом недорогой в плане строительства, возводится быстро при любой температуре. Эффективен  в любых климатических и геологических условиях. Бережет тепло зимой и удерживает прохладу летом. При возведении дома применяется хорошо просушенная древесина. Это дает возможность проводить внутреннюю отделку сразу же после завершения строительства.

Каркасная технология позволяет реализовывать любые архитектурные и дизайнерские решения. Внешний вид таких коттеджей и их внутренняя планировка поражают своим разнообразием. Отделочные материалы и элементы для кровли и фасада также можно выбрать любые. Минимальные сроки строительства – от нескольких недель.

Цена: 32 000 руб

Срок: 2-х месяцев

Блок газосиликатный

Строим дома из газосиликатного блока. Это натуральный стройматериал, одна из разновидностей ячеистого бетона. Применяется для кладки наружных и внутренних стен, возведения перегородок. Также используется для повышения теплоизоляции и защиты инженерных сетей (в частности отопительных).

Прочность блоков может варьироваться от 300 до 1200 кг/м³. Данный показатель определяет вид материала: конструкционный (вес 20-40 кг), конструкционно-теплоизоляционный (17-30 кг) и теплоизоляционный (14-21 кг). Стандартные размеры стеновых блоков – 600 х 200 х 300 мм.

Газосиликат обладает низкой теплопроводностью, что позволяет сэкономить на отоплении. Он в 5 раз легче обычного бетона при высокой прочности, за счет чего удается сократить расходы на возведении массивного фундамента. Для изготовления применяются только натуральные компоненты, что делает материал безопасным с точки зрения экологии.

Цена: 40 000 руб

Срок: 4-х месяцев

Калькулятор стоимости Дом online в 5-ть
шагов
Рассчитать стоимость
blank